

Ref : 66.0193

Agence Montpellier Occitanie
04 67 22 50 00

À vendre – Murs Libres – Emplacement premium Perpignan centre-ville
Norman Taylor vous propose à la vente murs libres un commerce de 65 m² idéalement situé sur l’une des artères principales du centre-ville de Perpignan, au coeur d’un environnement dynamique et commerçant.
Ce local bénéficie d’un flux piéton naturel tout au long de la journée et d’une clientèle fidèle, parfaitement positionnée sur un créneau ciblé en prêt-à-porter (PAP).
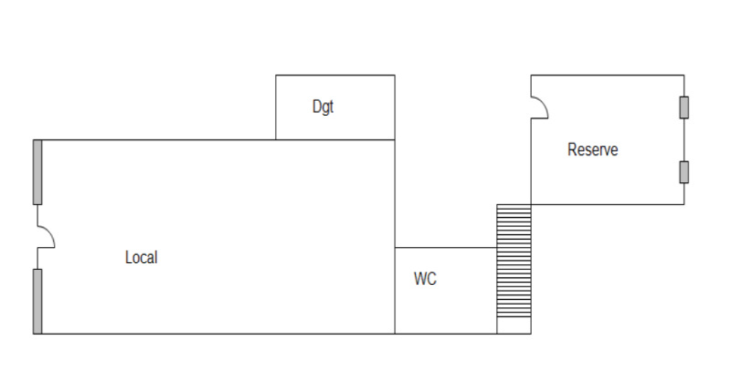
L’ensemble comprend :
Le commerce dispose d’un positionnement de niche qui attire une clientèle qualitative et récurrente, constituant une belle opportunité tant pour un investisseur que pour un exploitant souhaitant reprendre une activité clé en main.
Atouts :
Renseignements complémentaires et dossier sur demande.

| Type | Surface | Loyer annuel | Prix droit au bail & Murs |
| Locaux commerciaux | 65 m² | 11 832 euros HT/HC | 215 000 euros HD/HF |

Gare de Perpignan à 8 min
Aéroport de Perpignan à 16 min
Bus lignes 1,3,4,7, B à proximité
Parking Arago à 5 min
Accès A9 à min

En cours de réalisation
En cours de réalisation
Ici, pas de cookies à croquer, mais des traceurs utiles pour faire fonctionner le site, analyser sa fréquentation, et vous proposer des biens qui correspondent vraiment à vos recherches.
Vous pouvez les accepter, les refuser ou les paramétrer selon vos envies.
Agence de Montpellier
Agence de Lyon – Rhône Alpes
Agence de Bayonne
En soumettant ce formulaire, vous acceptez d’être recontacté(e) par nos équipes dans le cadre de votre demande et de recevoir, si vous y consentez, nos offres professionnelles.
66000 Perpignan
Ref : 66.0193
Stéphane WEBER
04 67 22 50 00
Agence Montpellier Occitanie
04 67 22 50 00
En soumettant ce formulaire, vous acceptez d’être recontacté(e) par nos équipes dans le cadre de votre demande et de recevoir, si vous y consentez, nos offres professionnelles.