




Ref : 66.0233

Agence Montpellier Occitanie
04 67 22 50 00

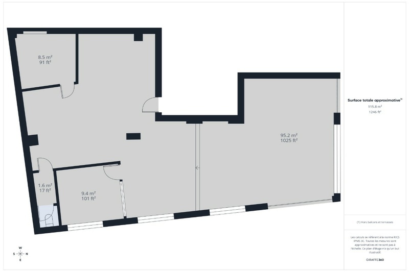
Local commercial 115 m² à vendre- Forte visibilité – Secteur gare
Situé dans le secteur recherché de la gare, ce local commercial d’environ 115 m² bénéficie d’un emplacement stratégique et d’un fort potentiel de valorisation.
Implanté en angle, le local profite d’une belle vitrine offrant une excellente visibilité ainsi qu’une luminosité naturelle très appréciable, un véritable atout pour une activité recevant du public ou pour des bureaux.
Le bien se compose actuellement :
Des travaux de rafraîchissement sont à prévoir, permettant à l’acquéreur de repenser entièrement l’aménagement et d’adapter le local à son projet. Cette flexibilité en fait un bien idéal pour des bureaux, des professions libérales, des services à la personne, ou toute activité recherchant une adresse visible et centrale.
Un emplacement de qualité, une surface confortable et un fort potentiel d’aménagement font de ce local une opportunité intéressante aussi bien pour un utilisateur que pour un investisseur.
Pour plus d’informations ou pour organiser une visite, n’hésitez pas à me contacter.

| Type | Surface | Prix vente |
| Locaux commerciaux | 115 m² | 130 000 euros HD/HF |


En cours de réalisation
En cours de réalisation
Ici, pas de cookies à croquer, mais des traceurs utiles pour faire fonctionner le site, analyser sa fréquentation, et vous proposer des biens qui correspondent vraiment à vos recherches.
Vous pouvez les accepter, les refuser ou les paramétrer selon vos envies.
Agence de Montpellier
Agence de Lyon – Rhône Alpes
Agence de Bayonne
En soumettant ce formulaire, vous acceptez d’être recontacté(e) par nos équipes dans le cadre de votre demande et de recevoir, si vous y consentez, nos offres professionnelles.
66000 Perpignan
Ref : 66.0233
Obert BERNADAS
04 67 22 50 00
Agence Montpellier Occitanie
04 67 22 50 00
En soumettant ce formulaire, vous acceptez d’être recontacté(e) par nos équipes dans le cadre de votre demande et de recevoir, si vous y consentez, nos offres professionnelles.